In de wijk Walle, ten zuiden van de historische binnenstad van Kortrijk, ontwikkelt Futurn een bedrijvencampus op de voormalige B.I.C. site. Deze strategisch gelegen reconversie combineert karaktervol erfgoed met moderne bedrijfsinfrastructuur.
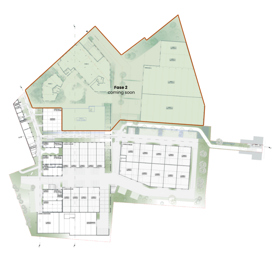
De eerste projectfase bracht in 2025 een mooie community van ondernemers samen op Walle in een 30-tal KMO-units en kantoren. Met fase twee laten we deze dynamiek nog verder groeien en creëren we extra ruimte voor verschillende types bedrijvigheid op deze karaktervolle plek.
Op Walle brengen we wonen en werken harmonieus samen. Twee residenties worden als geheel aangeboden en omvatten 41 moderne, energiezuinige appartementen met één of twee slaapkamers, telkens met een eigen terras.
Dit is een solide en duurzame vastgoedontwikkeling op een bruisende campus. Meer weten over deze investeringskans? Contacteer ons en we plannen graag een gesprek.
Decennialang was de Belgian Industrial Carpets site het kloppend hart van de textielnijverheid in Kortrijk. Vandaag krijgt dit industriële erfgoed een duurzame herbestemming. In samenwerking met Stad Kortrijk werd een Ruimtelijk Uitvoeringsplan uitgewerkt dat ruimte creëert voor moderne bedrijvigheid met respect voor het verleden.
De karaktervolle voorgevels en fabriekshallen blijven behouden en vormen de ruggengraat van de herontwikkeling. Authenticiteit en functionaliteit gaan hier hand in hand.
Op Walle in Kortrijk is het nieuwe fietspad die de site doorkruist, afgewerkt. Daarmee is de verbinding tussen Walle en de Doorniksesteenweg gerealiseerd. Vanaf midden oktober, na de oplevering van de studentenwoningen ter hoogte van de Doorniksesteenweg, zal de site ook via deze weg toegankelijk zijn.
De erfgoedelementen werden zorgvuldig in ere hersteld. De iconische schoorsteen zit in de laatste fase richting oplevering en ook de erfgoedmuur met groen gelakte vakwerken is bijna voltooid. Deze muur vormt een unieke schakel tussen oud en nieuw en blijft een van de meest herkenbare elementen van de site.
Intussen lopen de voorbereidingen volop voor de lancering van fase 2. Coming soon…
Fase 1 werd officieel en feestelijk geopend tijdens ons summer event waarbij alle KMO-units intussen zijn opgeleverd. Een belangrijke mijlpaal voor het bedrijventerrein!
Ook in het erfgoedlint van deze eerste fase schieten we goed op:
Daarnaast krijgt het gebouw aan de Doorniksteenweg, waar binnenkort studentenkoten komen, stilaan vorm: de ruwbouw is volop in opbouw.
Oplevering van de nieuwbouwunits
We starten graag met uitstekend nieuws! Vanaf de tweede helft van februari begint projectmanager Ofelia Roels met de oplevering van de eerste units in blokken A, B en C. Dat zijn de nieuwbouwunits in de gebouwen met de baksteenrode gevelpanelen.
Heropstart bouwwerkzaamheden erfgoedunits
We zijn blij te kunnen melden dat we
de bouwwerken aan het
erfgoedgedeelte opnieuw hebben
kunnen hernemen. We stellen dan ook
alles in het werk om deze unieke en
karaktervolle units voor u
gebruiksklaar te krijgen. De
bedrijfsunits van Blok B zullen
afgewerkt zijn voor oplevering tegen
midden april en nog voor het einde
van diezelfde maand willen we ook de
units in Blok C opleveren!
Waterinstallatie: gekeurd en operationeel
De waterinstallatie is gekeurd en volledig operationeel. Van onze kant uit zijn geen verdere interventies meer nodig. Vanaf nu kunt u rekenen op een correcte watertoevoer in uw bedrijfsunit.
Warmtenet: goed om weten
Ook het warmtenet die de site voorziet van duurzame energie is operationeel en draait op bodemtemperatuur. U kunt nu reeds contact opnemen met een HVAC-installateur van uw keuze om een passende warmtepomp te installeren. Zodoende kunt u uw bedrijfsunit(s) verwarmen en koelen vanaf wanneer u dat wenst!
Elektriciteit: aansluiting Fluvius
Alle nodige infrastructuur is geplaatst! Fluvius zorgt voor de eigenlijke aansluiting en dat zal plaatsvinden in de eerste helft van maart.
Syndicus: Dewaele
We opteerden voor Dewaele als
syndicus voor het beheer en onderhoud van
bedrijvencampus Walle. De eerste VMEvergadering zal plaatsvinden op
vrijdagnamiddag 21 maart 2025.
De nieuwbouw bedrijfsunits met baksteenrode betonpanelen zullen water- en winddicht zijn tegen eind dit jaar. Blok A, B en C hebben intussen een dak en betonvloeren. Op dit moment worden de poorten geplaatst en het buitenschrijnwerk uitgevoerd.
-
De bedrijfsunits met de typische sheddaken krijgen meer en meer hun definitief uitzicht. De raamopeningen zijn gemaakt, de gevels worden grondig gereinigd en binnen een 2-tal weken gaan de dakwerken aan unit 15 van start.
De staalconstructie en stalen dakplaten zijn geplaatst voor blokken A, B en C. Deze robuuste structuur vormt de basis voor de verdere afwerking.
De karakteristieke baksteenrode betongevels zijn in aanbouw. Met deze betonpanelen behouden we de harmonie tussen oud en nieuw.
Het dak van Blok B en C ligt reeds volledig dicht.
Wat de omgevingsaanleg betreft, starten we aan de riolering, en de uitvoering van de onderfundering voor de wegenis is intussen lopende.
Onze aannemer Vacomet voltooide deze maand de sloopwerkzaamheden rond het erfgoedgedeelte. De detailsloopwerken worden uitgervoerd door MCS bouw. Zij zullen deze maand de gevels reinigen en het metselwerk vakkundig afwerken.
Een Kick-off met een grote K. Gisteren ontvingen we in ‘ons’ Kortrijk ruim 150 lokale ondernemers, nauw betrokken stakeholders en sympathisanten voor ‘Kick-off Walle 2.0’.
Met dit event gaven we het startschot voor de herontwikkeling van de oude industriële site waar Belgian Industrial Carpets (BIC) decennialang haar activiteiten ontplooide.
Volgende week gaan de werkzaamheden van start. We gaven meteen ook het startschot voor de verkoop.
Gunther Biddelo en Frederik Baert konden hun ei kwijt over de groei en toekomst van Futurn in Business Vlaanderen regiospecial Kortrijk. In het interview blikken ze vooruit naar de hetontwikkeling van de BIC-site.
Digitaal lezen? https://lnkd.in/e3tcx-8F
Genesteld in het centrum van Kortrijk, tussen het ei en de Doorniksewijk, bevindt zich op Walle een oude industriële site, waar Bic Carpets (Philippe Vlerick) en Arne Quinze in een niet eens zo ver verleden een onderkomen vonden. Vandaag is de wel bekende thinktank Creax van Matthieu Mottrie de belangrijkste gebruiker. De vroegere BIC-fabrieken zijn sinds enkele jaren in handen van de familie Saelens. Samen met de Kortrijkse projectontwikkelaar Futurn van CEO’s Frederik Baert en Gunther Biddelo zal de familie Saelens zorgen voor een nieuwe en aangepaste invulling.
Lees hier het volledige artikel.
Locatie: Walle 111-113, Kortrijk
Projecttype: Gemengd binnenstedelijk project
Aanbod: Bedrijfsunits, kantoren, projectgronden voor gebouwen op maat en residentieel
Status: In aanbouw
Architecten: Goedefroo Architects